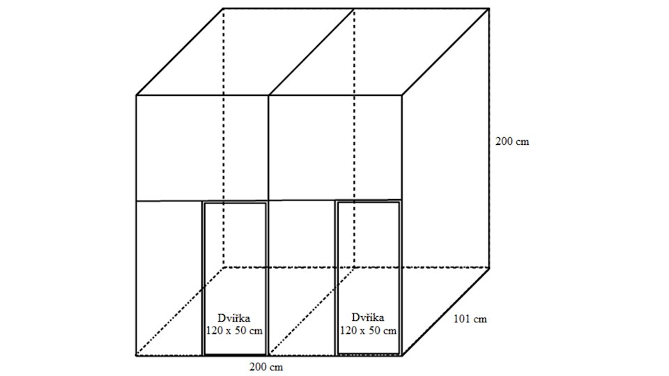
Stavebnice dvojvoliéry 2x1x2m ECONOMY
Kód produktu: SV02E

Stavebnice konstrukcí voliér je skvělým řešením pokud nemáte se stavbou klecí a voliér příliš zkušeností nebo pokud si chcete usnadnit práci s výpočtem materiálu. Dostanete od nás náčrtek voliéry a potřebné komponenty na její složení.
V balíčku od nás naleznete náčrtek, hliníkový profil 20x20;1,5mm nařezaný na míru, plastové spojky, panty a petličky (k pantům a petličkám dodáváme i nýtky – k jejich uchycení budete potřebovat aku vrtačku, vrtáky na předvrtání otvorů a nýtovací kleště). Pak už jen stačí konstrukci voliéry seskládat. Nemusíte nic řezat ani svařovat.
Ke konstrukci doporučujeme dokoupit pletivo, nýty či tex šrouby na jeho přichycení ke konstrukci. Pletivo si můžete zvolit sami, podle toho pro jaký druh papouška bude voliéra určená.
Pro tuto voliéru budete potřebovat cca 16 metrů pletiva a cca 450 ks texů nebo nýtů. Doporučujeme zakoupit o 1 metr pletiva více, a to z důvodu prořezu.
K našim skládačkám voliér si rovněž můžete pořídit krmné pulty dle vlastního výběru, které ke konstrukci jednoduše přišroubujete. Záleží jen na Vás jaký pult si vyberete. Je tedy jen a jen na Vás zda budete chtít ve voliéře krmný pult či nikoliv.